This section documents projects I’ve contributed to throughout my career—primarily in historic preservation, institutional architecture, and urban design. Work executed from 2001-2017 was done with Jorge Rigau, FAIA – Arquitectos.
Historic Preservation
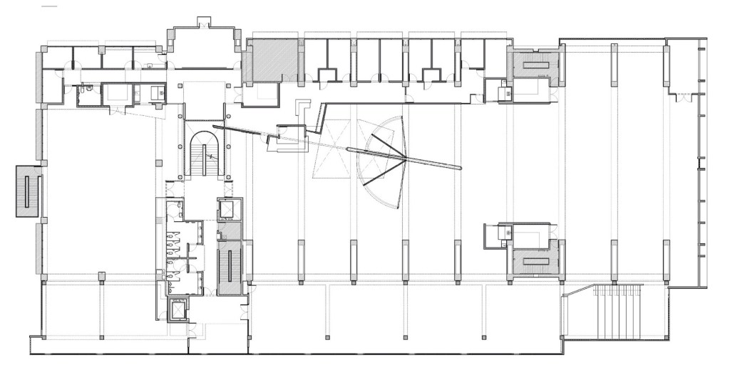
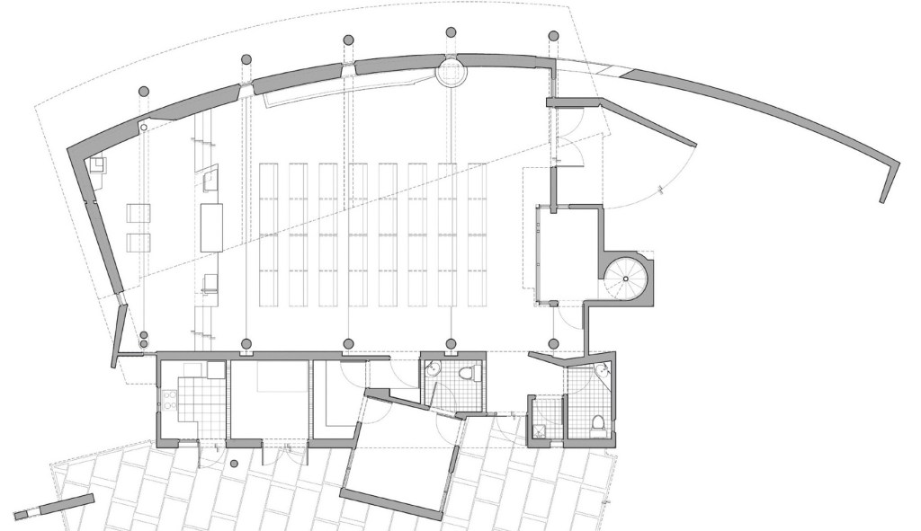
San José Church Restoration
Old San Juan, Puerto Rico | 2013-2021
With Jorge Rigau, FAIA – Arquitectos PSC
Client: Archdiocese of San Juan & Patronato de Monumentos
Comprehensive restoration of a 16th-century Dominican conventual church—the second-oldest church in the Americas. The project addressed structural stabilization, architectural restoration, and contemporary liturgical needs while respecting centuries of architectural evolution.
My role included restoration oversight, on-site documentation, detail development, and coordination with structural consultants and preservation specialists. The careful integration of new interventions with historic fabric required constant dialogue between archival research, material analysis, and hands-on problem-solving.




Recognition:
- AIA Florida/Caribbean Honor Award + Masonry Award (2021)
- AIA Puerto Rico Honor Award (2020)
“from sketch to space, part one“
“from sketch to space, part two“
Institutional
School of Architecture Expansion and Interior Rehabilitation
Polytechnic University of Puerto Rico | 2013
With Jorge Rigau, FAIA – Arquitectos PSC
16,000 sq ft four-story addition providing new studio spaces, lecture halls, and support facilities. 32,000 sq ft interior retrofitting and space planning of two stories of the Architecture administrative and faculty offices, classrooms, and the existing studio space.


Anglican Chapel Archangel Gabriel
Anglican Church of Puerto Rico | 2006
With Jorge Rigau, FAIA – Arquitectos PSC
A 100-seat chapel with ancillary spaces in a remote suburban setting outside Humacao. For security, openings in the reinforced concrete structure were minimized, while clerestory glazing frames the surrounding mountains.




Residential
Casa Persiana / Spivak – Velilla Residence
Private Client | 2003
With Jorge Rigau, FAIA – Arquitectos PSC
A 2,750 sq.ft. private residence overlooking the Metropolitan Area of San Juan.
Recognition: VI Biennal (Un-Built Work) Puerto Rico’s Architects & Landscape Architecs Assoiation
Honorable Mention for Casa Persiana, a single-family residence (2001)





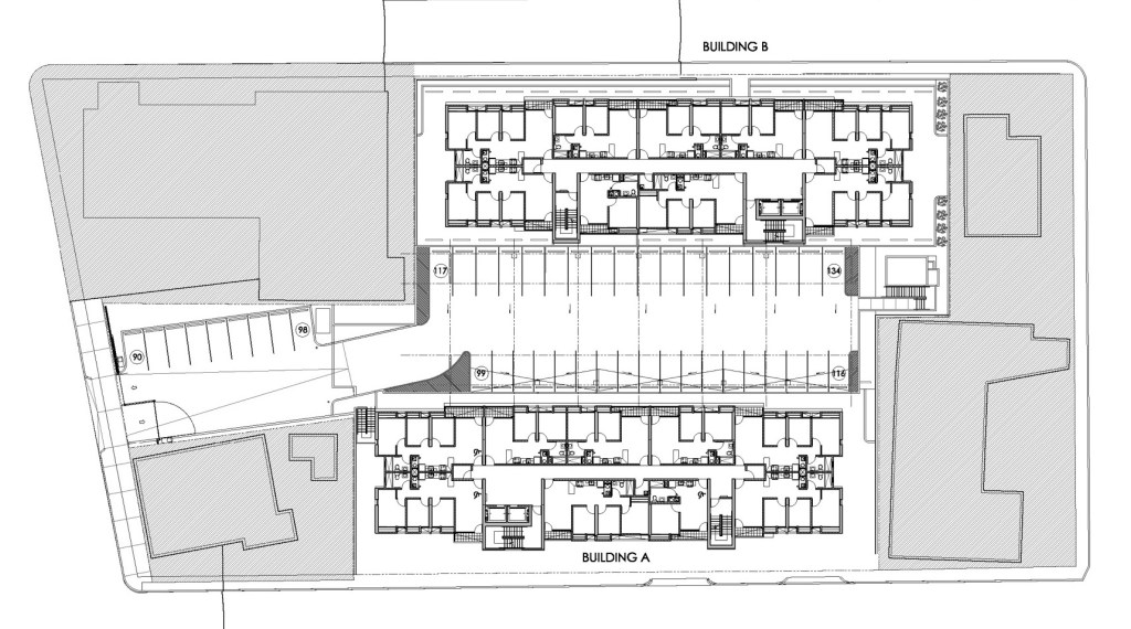
Santa Rita Apartments – Low-Income Housing
MUBA Group | 2012
With Jorge Rigau, FAIA – Arquitectos PSC
A 126-unit social housing complex of two identical (yet mirrored) towers of 63 units each of one, two, and three-bedroom rent-based apartments. The program includes a community and media room, administrative offices, and ancillary programs.



Current Practice
Since 2020, I’ve been with Perkins&Will’s Seattle studio, working on institutional and mixed-use projects in the Pacific Northwest. This work is not documented here to respect client confidentiality and firm protocols.
For a complete list of projects and professional experience, contact me directly.